計測結果報告 - 沖縄県うるま市A様邸 - 物件概要
- 関連リンク
-
- 温度測定
- 温度測定 - 概要
- 測定結果報告
- 沖縄県うるま市A様邸 - 物件概要
- 沖縄県うるま市A様邸 - 結果:2015年 夏
- 温度測定
- 物件概要
-
- 建築面積:78.98㎡(23.89坪)
- 1階床面積:77.32㎡(23.39坪)
- 2階床面積:68.47㎡(20.71坪)
- 延べ床面積:145.79㎡(44.11坪)
- 構造:木造(築9年)
- 主な導入設備
- 暖冷房:エアコン(ダイキン/冷房能力5.0 kW/COP = 2.78)
- 給湯:エコキュート(三菱/給湯専用460 L)
- 太陽光パネル:12.6 kW
- その他:ハニカム構造断熱ブラインド
- 測定期間:2015年8月4日~
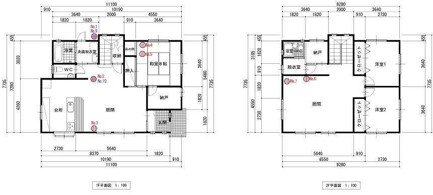
- 測定器設置箇所
- 住宅北側外壁(No.1屋外気温、No.9屋外湿度)
- 1階居間(No.2 1F室温、No.10屋内湿度)
- 1階居間南西壁面(No.3 1F南西壁面(居間))
- 1階和室北東壁面(No.4 1F北東壁面(和室))
- 1階和室畳表面(No.5 1F床面(和室))
- 2階ホール(No.6 2F室温)
- 2階ホール北西屋根面(No.7 2F北西屋根)
- 建築面積:78.98㎡(23.89坪)

